小區:福星惠譽星譽國際
戶型:92㎡;114㎡;120㎡;131㎡;142㎡

福星惠譽星譽國際項目作為江岸區大盤,位于漢口內環與二環之間,建設大道與三眼橋路交匯處,交通便捷,配套齊全。
為了給福星惠譽星譽國際的業主帶來更好的生活體驗,澳華裝飾的設計師全面解析建面92-142㎡的戶型方案。從居住者出發,從場景入手,平衡視覺效果與居住功能,擴展生活秩序!
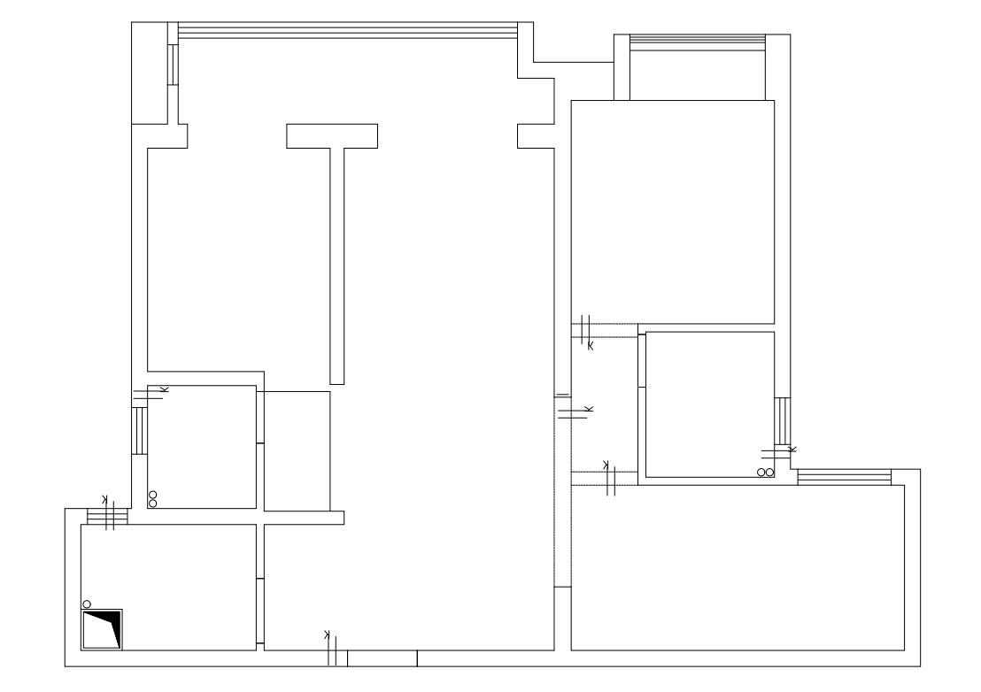
92㎡戶型解析

△原始結構圖
戶型優點
√ 采光通風都很不錯
√ 戶型功能區域劃分清晰
戶型缺點
× 大框架剪力墻結構固定,只能做小調整
方案
優化動線+擴大視覺面積

思路解析
1 客餐廳與陽臺聯通,增大會客區域,提升大氣視覺。
2 L型廚房設計,洗切炒動線合理簡短。
意向圖展示

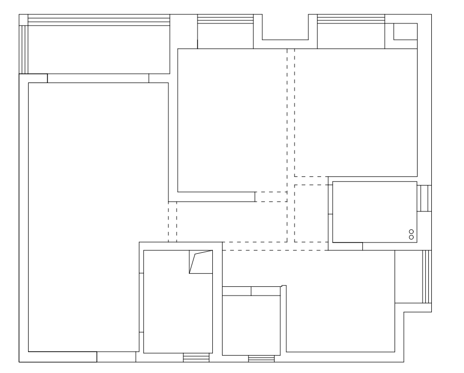
114㎡戶型解析

△原始結構圖
戶型優點
√ 采光通風都很不錯
√ 戶型功能區域劃分清晰
√ 觀景大陽臺
戶型缺點
× 優化儲物空間
方案
優化室內采光+超強收納

思路解析
1 客廳、臥室與陽臺聯通,采光好,使用面積大。
2 定制家用柜,提升家的容積,家里不再亂糟糟。
意向圖展示

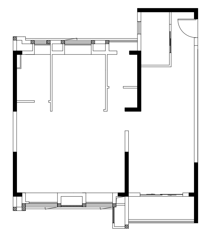
120㎡戶型解析

△原始結構圖
戶型優點
√ 全房通透采光性好,通風好。
√ 客廳功能區域空間較大,有利于舒適性的布置,增加使用性和趣味空間。
√ 戶型功能區域劃分清晰。
戶型缺點
× 需要對餐廳、廚房區域進行優化調整
× 全屋飄窗空間優化
方案
客餐廳一體設計+實用三房設計

思路解析
1 廚房和餐廳區域,規劃半開放式用餐區域,增加舒適感。
2 優化飄窗設計,增加使用面積。
3 衛生間均使用干濕分離設計,更易清潔。
效果圖展示

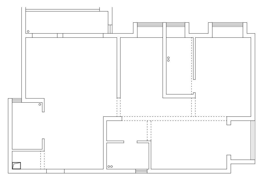
131㎡戶型解析

△原始結構圖
戶型優點
√ 房屋通透,采光好,通風好。
√ 結構方正,可做拆改。
戶型缺點
× 需要對餐廳區域進行優化調整
方案
合理規劃空間,優化使用面積

思路解析
1 收納空間合理,增加家的容積,日常收納更方便。
2 合理利用墻面布局餐廳的位置,優化了使用空間。
3 通過砌墻做三房設計,合理了布局了兩個飄窗。
意向圖展示


142㎡戶型解析

△原始結構圖
戶型優點
√ 客廳空間充裕,有大的觀景陽臺。
√ 空間動靜分區明朗。
戶型缺點
× 客廳空間浪費嚴重
× 缺乏休閑娛樂空間
方案
沙發背后儲物+閱讀書房

思路解析
1 客廳利用沙發背后做儲物,增加了收納的同時也使得客廳的空間更加美觀。
2 陽臺打開,保證通風和自然采光最大,也能做到真正意義上的觀景。
3 規劃閱讀書房,還可以滿足偶爾居家辦公的需求。

知精準報價 避裝修深坑
選擇您喜歡的風格
現代輕奢
現代美式
北歐
新中式
歐式
其他
知精準報價 避裝修深坑
選擇房屋面積區間
您的戶型
兩居室
三居室
四居室
五居室
六居室
知精準報價 避裝修深坑
稍等片刻,您的報價正在生中......
知精準報價 避裝修深坑
每日僅限前10名用戶