案例簡介:沒有繁瑣及浮夸的表面裝飾處理,有的只是生活中最常運用最為樸素的語言,以及那些精挑細選、用來點綴多彩生活的家具與擺設,簡單的局部弧線點綴讓整個家增添一份設計感,一副清爽且富有質感的構圖便形成了。現代簡約的風格不僅僅滿足年輕人的需求,對于多子家庭的孩子也會感受到家里的時尚。
戶型解析:

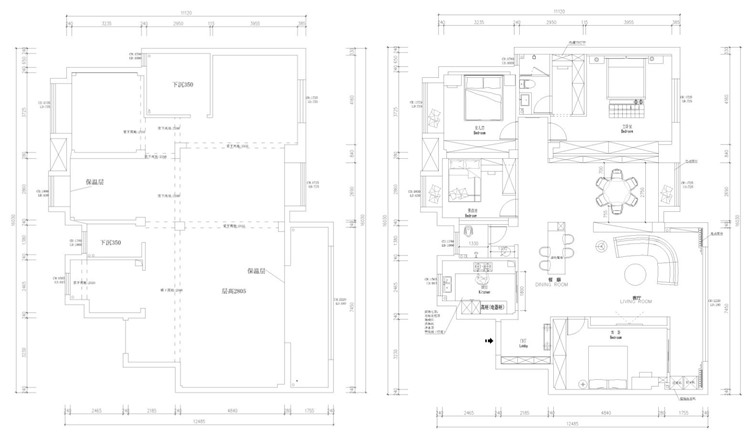
灣郡北岸公館四居室現代簡約住宅的面積則是169平方米,房屋戶型整體規整,四居室的分布合理。房屋的客廳、餐廳面積以及方正感都是很好地,房屋的衛生間以及廚房都是具有窗戶的,居住的衛生性也有效的提升。并且四居室的房屋在整體的面積方面夠用,每一個人都可以找到屬于自己的空間。
客廳:


獨特線條的背景墻和現代的家具搭配很時尚,淺色調的客廳溫馨舒適。
餐廳:

簡約的圓形桌滿足了多子家庭的需求,透過窗戶的陽光令用餐更加愉快。
臥室:

灰色條紋的搭配感覺很忽視,休息和辦公結合為一體,滿足了工作和休息的需要。
知精準報價 避裝修深坑
選擇您喜歡的風格
現代輕奢
現代美式
北歐
新中式
歐式
其他
知精準報價 避裝修深坑
選擇房屋面積區間
您的戶型
兩居室
三居室
四居室
五居室
六居室
知精準報價 避裝修深坑
稍等片刻,您的報價正在生中......
知精準報價 避裝修深坑
每日僅限前10名用戶