案例簡介:在設計整體選材上選用質感的材料——全拋釉地磚、多層地板、白色木門、墻面墻布,材質間相互融合對比以彰顯整體空間的貴氣感,更加滿足其人文的功能需求,在布局上把空間合理化,讓空間成為了設計的主導;設計重視簡潔,讓整體更加和諧、溫暖舒適,讓業主在安靜、遐想的空間小憩,更加關照人的內心世界。
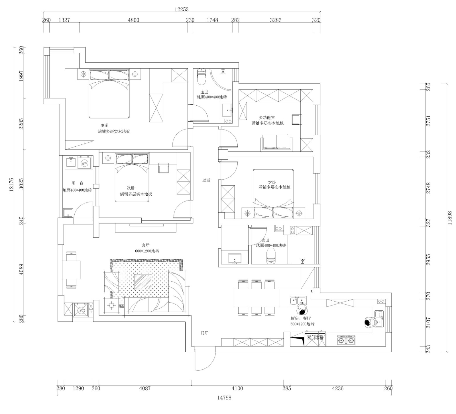
戶型解析:

航天雙城輕奢住宅的面積是168平方米,房屋的整體戶型很方正,房屋做到了四面通風的設計狀態。整體室內的陽光以及通風情況都是很不錯的,兩個衛生間的設計滿足了多子家庭的使用狀態,即便是每一個人都著急外出也不會出現衛生間不夠用的尷尬。而且客廳的陽臺又開拓了一片新天地,具有不同的居住感受。
客廳:

灰色的格調彰顯了整體的高貴感,椅子和茶幾都可以感受到輕奢的時尚體驗。
餐廳:


白色的桌面和灰色的椅子別具一格,墻面的簡單設計令餐廳看起來非常舒適,餐廳同時還滿足了入戶的儲物需要。
臥室:


臥室和工作融合成為一體,臥室的飄窗以及床鋪能夠令人整個人感覺很放松。
知精準報價 避裝修深坑
選擇您喜歡的風格
現代輕奢
現代美式
北歐
新中式
歐式
其他
知精準報價 避裝修深坑
選擇房屋面積區間
您的戶型
兩居室
三居室
四居室
五居室
六居室
知精準報價 避裝修深坑
稍等片刻,您的報價正在生中......
知精準報價 避裝修深坑
每日僅限前10名用戶