案例簡介:愜意,和生活一樣,看似暗淡,卻蘊藏著美的無限雋永。溫潤淡樸的基調,把空間平鋪成一張偌大的畫布,沙發是柔美的弧形,契合了想表達的柔美與優雅。樸實、純粹的材質與簡約、自然,不帶一絲造作的中性配色,賦予寧靜的愜意氛圍。作為婚房而言,每一處設計都獨具特色,送給新人很美好的祝福。
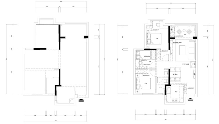
戶型解析:

金科城三居室現代簡約風格住宅面積是96平方米,96平方米的面積設計成為了三居室,每一處的面積都得到了充分的利用。個別臥室雖然空間小卻可以滿足居住的需要,房屋客廳的面積很大,完全滿足了一家人飯后茶余的休閑時光。南北通透的戶型做到了冬暖夏涼,居住的體驗很理想。
客廳:



暖色調的設計搭配獨特的沙發椅以及茶幾別具風味,柜子上的飾品也充滿了現代感,每一處都突出現代簡約的風格。
餐廳:

餐廳和客廳開放式的設計,特色吊燈搭配木頭餐椅別具一番風味。
臥室:

既滿足了大床鋪的要求,又滿足了儲物的需要,柜子側面也得到了充分的利用。
知精準報價 避裝修深坑
選擇您喜歡的風格
現代輕奢
現代美式
北歐
新中式
歐式
其他
知精準報價 避裝修深坑
選擇房屋面積區間
您的戶型
兩居室
三居室
四居室
五居室
六居室
知精準報價 避裝修深坑
稍等片刻,您的報價正在生中......
知精準報價 避裝修深坑
每日僅限前10名用戶