案例簡介:本案例的業主是一個熱愛田園風光的獨居女白領,她希望自己的家中能夠引入一些自然化元素,讓自己在休憩時感受到自然的美好與舒適。而由于房屋一般就只有自己居住,父母會偶爾過來探望自己,所以希望設計師能夠為偶爾來探望自己的父母預留出一個空間。根據業主的想法,設計師選擇了美式田園風作為空間軟裝方向,搭配以各種清新的色彩及自然化元素,讓室外美景“走”入家居空間。
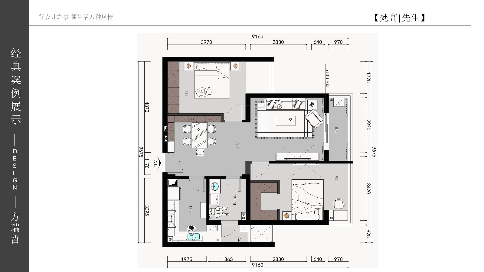
戶型解析:

愛家的這套二居室的房屋占地面積約為88㎡,整個的房屋結果相對比較方正,但是由于房屋面積不算寬敞,想要設計出兩個獨立的休憩空間存在著一定難度。為了滿足業主及其父母的起居使用需求,設計師舍棄主臥的衛生間設計,同時將客廳區域進行放大,以提升整個家居空間的寬敞度。而由于整個家居空間面積不大,因此家具的選擇上,設計師優先選用了造型簡單且體量較小的,以起到視覺平衡效果。
客廳:

大面積的淡藍色讓人仿佛窺見藍天的清新爛漫,做舊處理的方形瓷磚裝飾性強而又不會顯得過于突兀。
臥室:

木色低的花鳥畫壁畫墻面清新而又不失韻味美,簡單的蕾絲簾布文藝范十足,有效起到空間隔斷作用。
衛生間:

衛生間區域借用大面積的淺色瓷磚進行鋪設,強調空間整潔清爽感,鏤空式臺面下置洗衣機,有效提升空間利用率。
知精準報價 避裝修深坑
選擇您喜歡的風格
現代輕奢
現代美式
北歐
新中式
歐式
其他
知精準報價 避裝修深坑
選擇房屋面積區間
您的戶型
兩居室
三居室
四居室
五居室
六居室
知精準報價 避裝修深坑
稍等片刻,您的報價正在生中......
知精準報價 避裝修深坑
每日僅限前10名用戶