案例簡介:作為多家庭成員,本案例的業主希望設計師在進行規劃設計的時候能夠考慮到不同家庭成員的生活習慣與審美,因此設計師在進行空間設計之前與業主及家人進行了一定的交流,在了解各位家庭成員的需求后對不同的功能空間進行選擇性的裝飾設計。而整體則選用符合大眾審美的現代簡約風進行軟裝,以兼顧不同年齡段家庭成員的審美。
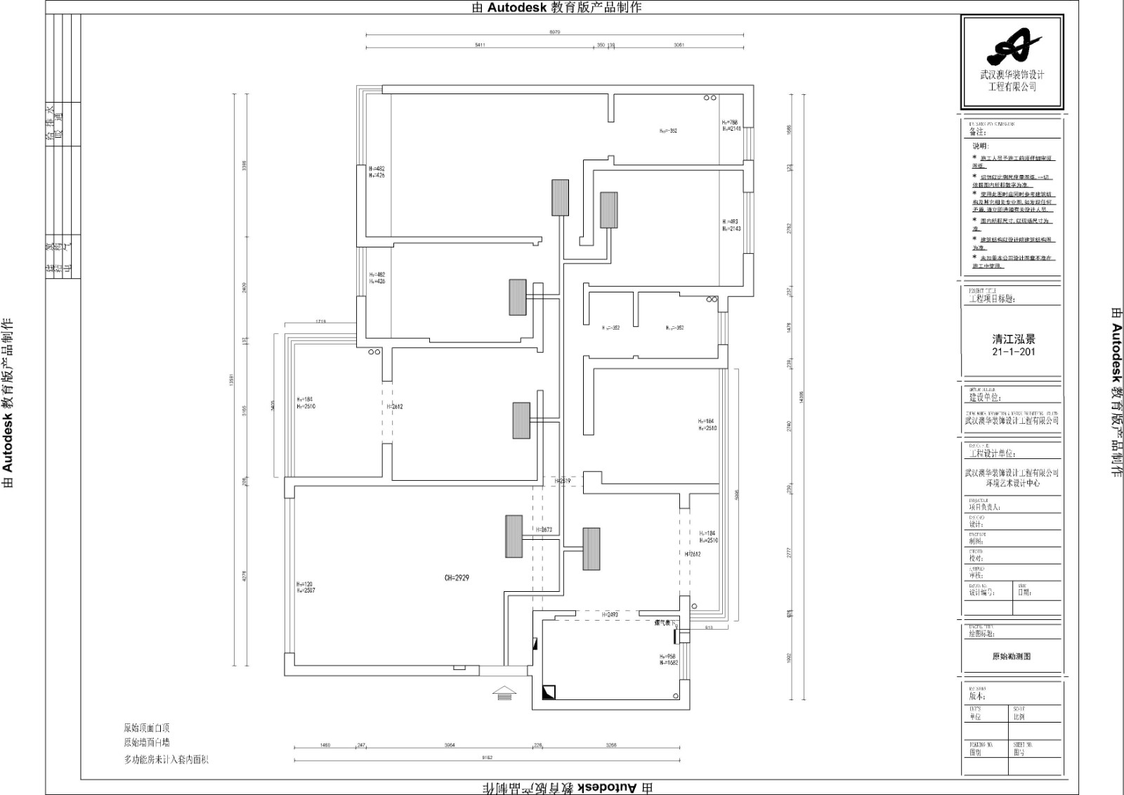
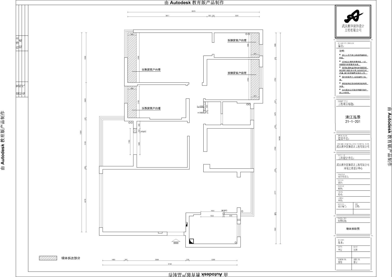
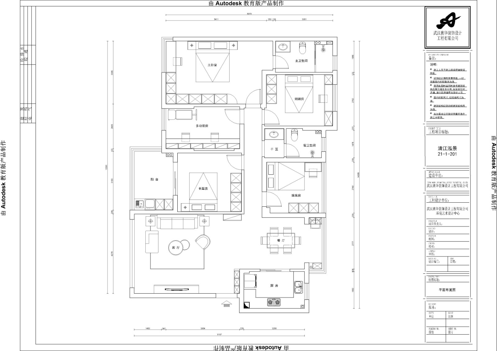
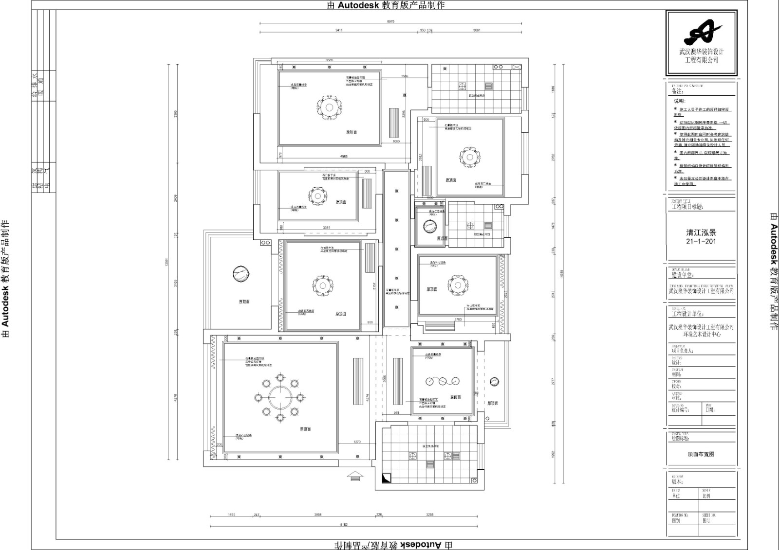
戶型解析:




位于清江鴻景的這套五居室住宅的占地面積約為138㎡,原有的房屋戶型結構存在著較多的細小角落,有的過道過于狹窄,對日常起居生活會造成一定不便利影響。因此設計師在進行規劃設計的時候,將戶型結構進行了一定的修改,將部分墻體去除,以提升整個空間的寬敞度。而為滿足不同家庭成員使用需求,則有針對性的對不同空間進行裝飾,強調個性感與舒適感。
客廳:




客廳整體用色素雅潔凈,強調柔和溫馨感。大面積的落地窗則確保陽光能夠更好的進入會客區域,提升生活品質。
主臥室:

白色墻面搭配上簡單掛畫,簡約而又不過于單調。藍色的窗簾為客廳同款,有效保證了各個空間的一致性。
長輩房:

由于業主家中老人偏愛寂靜的環境,因此老年人選擇了以黑白的經典搭配,點綴以清新山水畫,營造溫馨靜謐感。
兒童房:


兒童房的設計則從孩子的審美考慮出發,選擇了相對比較柔和明快的色彩進行裝飾,搭配以童真掛畫,甜美而又溫馨。
知精準報價 避裝修深坑
選擇您喜歡的風格
現代輕奢
現代美式
北歐
新中式
歐式
其他
知精準報價 避裝修深坑
選擇房屋面積區間
您的戶型
兩居室
三居室
四居室
五居室
六居室
知精準報價 避裝修深坑
稍等片刻,您的報價正在生中......
知精準報價 避裝修深坑
每日僅限前10名用戶