案例簡介:本案例的業主是一對即將退休的夫婦,其中男主人偏愛品酒,且平時也會收藏一些好酒,因此在裝修設計這塊希望能夠預留出自己的小天地。而女主人公平常負責家務比較多,因此裝修設計這塊更看重的是整體的耐看性與是否便于打理。綜合兩位業主的需求,設計師對空間進行了再分割,同時在室內融入酒柜設計,以滿足男主人的需求。
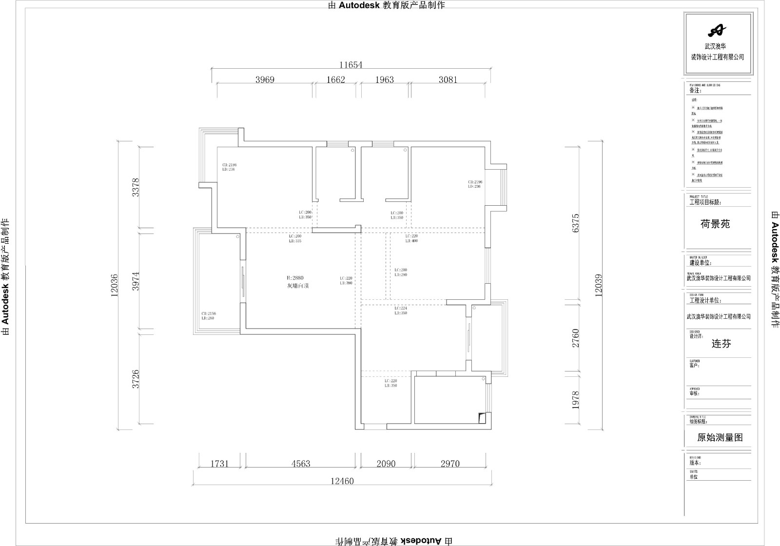
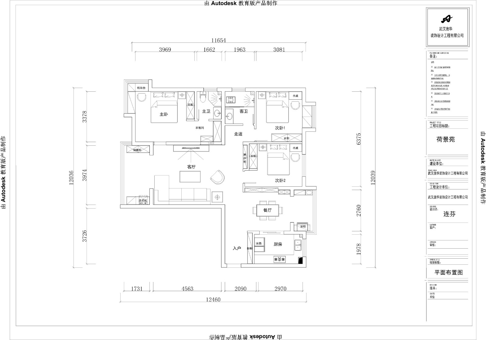
戶型解析:


荷景苑這套128㎡的四居室住宅整體戶型四平八穩,而空間結構上,入戶處的面積相對比較寬敞,如果僅僅用來做玄關相對比較浪費,因此設計師將該空間分隔成兩個區域,其中一塊設計為廚房,以提升空間的利用率。主臥區域則與其中一個衛生間空間進行銜接融合,提升主人起居生活的便利度。
玄關:

玄關處借用遠處墻面的藝術畫作為點綴,同時側面由白色櫥柜進行裝飾,強調實用性。
客廳:



由木質與大理石材質打造的電視背景墻清新而又不失理性,鏤空的設計則讓空間的通透感更加強烈。
餐廳:


嵌入式木質酒柜滿足男主人收藏酒的需求。白色與原木色的搭配組合,則讓空間整體清新自然。
知精準報價 避裝修深坑
選擇您喜歡的風格
現代輕奢
現代美式
北歐
新中式
歐式
其他
知精準報價 避裝修深坑
選擇房屋面積區間
您的戶型
兩居室
三居室
四居室
五居室
六居室
知精準報價 避裝修深坑
稍等片刻,您的報價正在生中......
知精準報價 避裝修深坑
每日僅限前10名用戶