案例簡介:本案例的業主是一對年輕的夫婦,兩人崇尚簡約、自由舒適的生活,因此本案例的設計以舒適潔凈為主,家裝風格選擇為相對比較經典耐看的現代輕奢風,色彩則選擇為當下比較流行的自然系淺色元素,搭配以各種細節裝飾點綴,強調溫馨舒適的氛圍。整體軟裝借助輕奢的材料質感與精致的造型設計來提升空間質感。
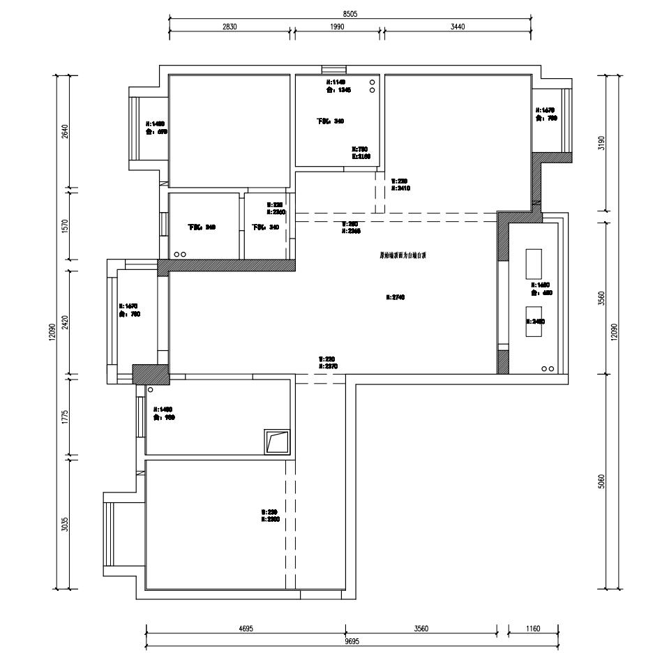
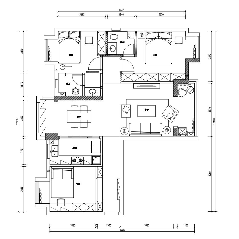
戶型解析:


美聯城仕這套114㎡的三居室住宅雖然整體戶型較為平整,但是由于入戶長度過長,占用了較多空間且實用性不強,因此設計師在進行規劃設計的時候對入戶走廊及玄關進行了改造,增強該區域的實用性與觀賞度。為滿足業主的辦公需求,設計師將次臥空間打造成一個多功能書房,即可辦公閱讀,也可滿足居住需求。
客廳:

沉穩的灰色瓷磚搭配上藍色鑲邊背景墻,藝術而又高級。由于業主平常沒有看電視的習慣,因此置放電視的區域改放一幅藝術畫,有效節約裝修花銷。
餐廳:



餐廳設置在廚房外部與客廳的銜接區域,有效避免了空間的浪費。而墻壁上簡單掛畫,則為就餐空間增添了一抹藝術時尚氣息。
臥室:

淺綠色的墻壁搭配上灰色床體,柔和中帶有淡淡的溫馨感。簡約的藝術畫則為空蕩的墻面起到很好裝飾。
知精準報價 避裝修深坑
選擇您喜歡的風格
現代輕奢
現代美式
北歐
新中式
歐式
其他
知精準報價 避裝修深坑
選擇房屋面積區間
您的戶型
兩居室
三居室
四居室
五居室
六居室
知精準報價 避裝修深坑
稍等片刻,您的報價正在生中......
知精準報價 避裝修深坑
每日僅限前10名用戶