案例介紹:“做減法”是業主的人生信條,對于新家的定義,也以“簡”字貫穿。業主希望自己及家人生活在簡單舒適的環境中,不被風格形式所限制,家具造型及配色歷久彌新,能夠展現出沒有定義的簡雅家居生活。
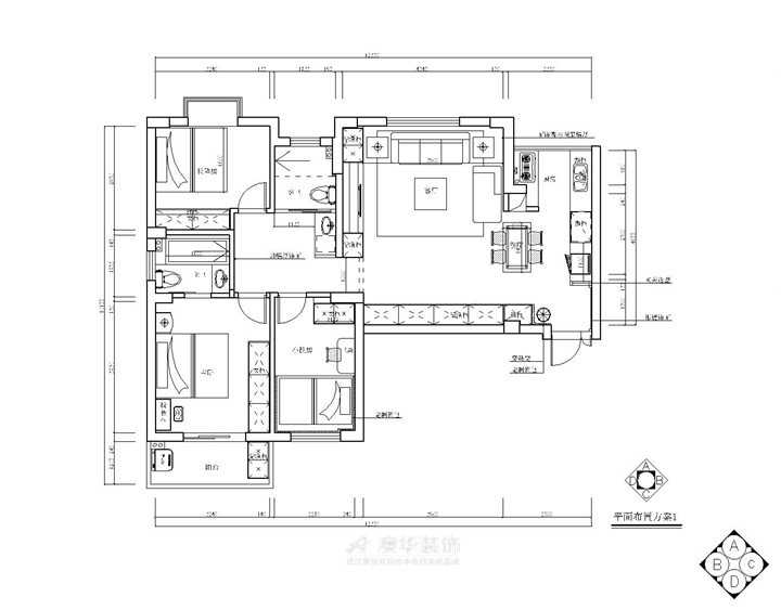
戶型解析

戶型整體方正,廚房靠近大門,是被不容易出現油煙問題,開放式廚房鏈接餐廳,并與客廳一體化銜接,令整個活動區域更加寬敞明亮,臥室集中分布,主臥帶有陽臺,方便晾曬衣物,各個臥室到公衛的距離不遠,日常使用方便。
客廳


整體以白色為主,頂面和電視墻燈帶相互糅合后,呈現出獨特的視覺觀感,布藝沙發圍合式放置,滿足了家庭日常社交需求,地面增置圓形地毯,與方形吊頂對立碰撞,提升了空間的層次感,沙發左側空間設以收納柜面,簡單的線條勾勒出時尚沉穩的力量。
知精準報價 避裝修深坑
選擇您喜歡的風格
現代輕奢
現代美式
北歐
新中式
歐式
其他
知精準報價 避裝修深坑
選擇房屋面積區間
您的戶型
兩居室
三居室
四居室
五居室
六居室
知精準報價 避裝修深坑
稍等片刻,您的報價正在生中......
知精準報價 避裝修深坑
每日僅限前10名用戶