案例簡介:本案例的業主是一對年輕的夫婦,兩個人都喜歡實用簡單的裝修風格。于是,設計師按照業主的想法與生活習慣選擇了強調簡約之美的現代輕奢風作為軟裝主基調,同時借助材料的質感起到裝飾作用,以提升室內環境的質感與格調感。
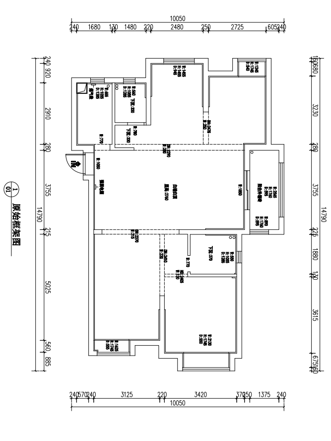
戶型解析:


華潤翡翠城這套四居室的建筑面積為140㎡,原有的戶型結構已經進行了基本的功能分區,因此設計師沒有進行墻體大大改動。由于主臥區域的面積較大,因此設計師分隔出一個單獨的區域打造成衣帽間,在提升空間利用率的同時避免臥室面積太大帶來空曠感。裝修風格上,設計師則挑選了相對比較簡約而又不失品味格調感的現代輕奢風,以滿足業主夫婦的審美需求。
客廳:


客廳使用簡約的白色作為主基調色,為整體潔凈清新的風格奠定基調。白色大理石茶幾搭配上柔軟布藝沙發,營造不同的雅致格調。
臥室:


充滿童真韻味的床頭墻設計搭配上粉嫩的床體設計,勾勒出甜美優雅的少女氛圍。
知精準報價 避裝修深坑
選擇您喜歡的風格
現代輕奢
現代美式
北歐
新中式
歐式
其他
知精準報價 避裝修深坑
選擇房屋面積區間
您的戶型
兩居室
三居室
四居室
五居室
六居室
知精準報價 避裝修深坑
稍等片刻,您的報價正在生中......
知精準報價 避裝修深坑
每日僅限前10名用戶