細心耐心
案例簡介:本案例的客戶從事教育工作,喜歡家里簡單整潔但是要有格調。因此設計師在進行裝飾設計的時候,選用了相對比較低調而又不失內含的輕奢風進行軟裝,同時借助各類細節的裝飾點綴提升空間的品質、彰顯主人的高雅審美與情趣。
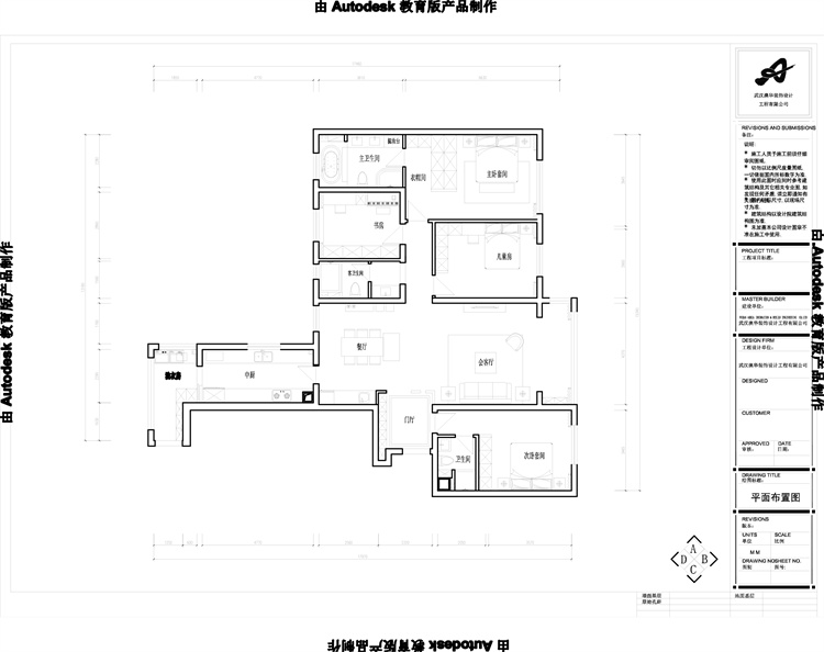
戶型解析:

泛海國際這套四居室的住宅面積約為206㎡,雖然整體面積較為寬敞,但是戶型結構并不規整,尤其是一塊突兀的狹長型空間需要進行合理的規劃設計,否則整個家居空間就會給人強烈的違和感。而本案例的設計師則是直接利用狹長型空間內部空間改造成使用頻率并不高的儲物間,外部區域則借助本身的結構打造成廚房,通過戶型本身結構起到降低室內油煙的效果,將空間劣勢轉化為優勢。
玄關:

簡單的白色木質儲物柜搭配上綠植,簡約又清新。
客廳:

木質與大理石材質的碰撞讓空間在溫潤舒適中多了一抹優雅的高級品質感。
餐廳:

嵌入式櫥柜隱形感強而又不失實用性,橢圓形燈飾清新而又不失輕奢時尚感。
臥室:



對稱式床頭設計給人以沉穩典雅氣息,放射式燈飾既吊頂處的金色鑲邊處理則平添高級格調。
案例簡介:本案例的業主是一個經商商人,平時經常會有好友以及客戶來訪,因此他希望家裝設計能夠突出檔次感與個人品味。設計師通過與業主進行深入交流后,決定選用華貴氣息較為濃烈的歐式風裝飾房屋,同時借助大理石打造背景墻,讓整個家居空間能夠更好的彰顯雍容華貴的高級品質感。
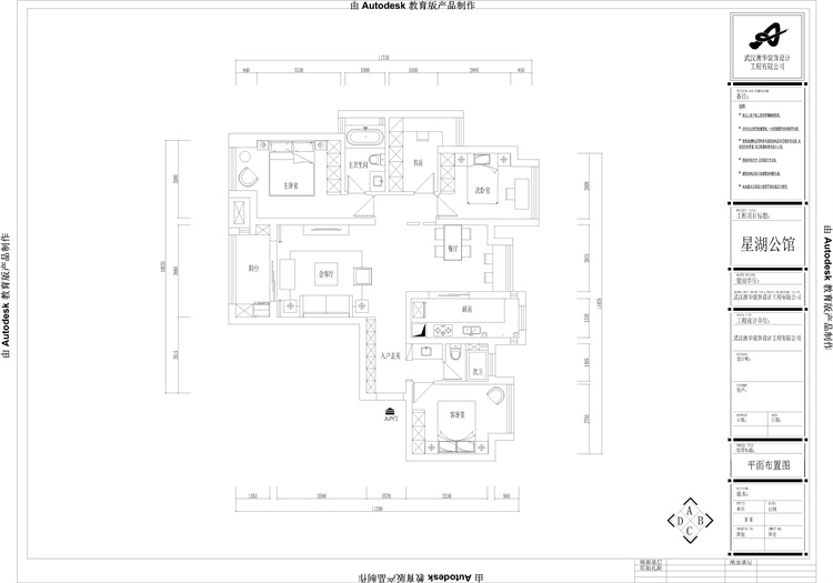
戶型解析:

華潤悅府這套四居室的住宅占地面積約為192㎡,雖然整體的戶型面積比較大,但是由于整體結構并不規整且功能空間較多,因此在進行裝飾設計的時候就需要設計師合理進行空間規劃,同時避免各類繁瑣精致的歐式元素造成空間壓迫感。為了化解空間戶型劣勢,設計師將外部存在犄角的區域與陽臺直接打通,通過擴大陽臺面積合理利用犄角區域。
玄關:

巨型清新歐式油畫打造的背景墻搭配上金碧輝煌的吊頂,讓人入門即可感受到歐式貴族氣息。
客廳:



大面積的大理石材料強調高級品質感,金色吊頂搭配上華麗吊燈,強調格調與檔次。
餐廳:

造型精致的木質桌椅搭配上復古窗簾,營造典雅歐式風情美。
臥室:


暗紋淺色壁紙簡約清新而又不失格調感,復古燈飾與床具則強調空間歐式風情。
陽臺:


深色復古窗簾營造貴族古韻美,嵌入式燈具即可滿足使用需求又不會喧賓奪主。
案例簡介:本案例的業主是一位90后銀行工作職員,對待工作嚴謹的他對于生活也同樣是如此,因此在進行家裝過程中他更重視細節的強調,希望能夠通過細節強調空間的品質感。設計師在與業主進行深入溝通后,為業主選擇了相對比較強調質感的現代簡約風,同時借助不同質感的材料裝飾空間,強調細節處的高級感。
戶型解析:

東湖城這套四居室的住宅占地面積約為126㎡,戶型結構并不規整,尤其是入戶區域向外延伸的空間顯得過于突兀。因此設計師在進行規劃設計的時候,重新進行了功能分區的劃分,同時考慮到主人生活的私密度與空間實用性,設計師將入戶區域的空間直接改造成一個客房,滿足客人過夜使用需求。而就餐區域則被設計在廚房尾部與客廳的延伸處,避免整個空間看起來過于空蕩的同時有效提升空間利用率。
玄關:

木質儲物柜簡約又耐看,無燈具式照明強調空間清新優雅高級感。
客廳:



簡約的灰色點綴上亮橘色皮質沙發,清新而又不失活潑自由感。
餐廳:

就餐區域借助灰色的桌椅進行打造,強調實用性。
廚房:

利用大面積淺色系裝飾空間,奠定清爽潔凈氛圍,木質櫥柜門則為空間增添自然溫潤氣息。
臥室:



借助不同深度的灰色裝飾空間,節約又不失層次感。
書房:

借助儲物門做隔斷,既可以提升空間利用率,又可以借助各類擺件與書籍進行書房裝飾。
知精準報價 避裝修深坑
選擇您喜歡的風格
現代輕奢
現代美式
北歐
新中式
歐式
其他
知精準報價 避裝修深坑
選擇房屋面積區間
您的戶型
兩居室
三居室
四居室
五居室
六居室
知精準報價 避裝修深坑
稍等片刻,您的報價正在生中......
知精準報價 避裝修深坑
每日僅限前10名用戶