認真負責
案例簡介:為方便孩子上學,本案例的業主在孩子上學前就購置了一套學區房,因此在進行裝修設計上希望設計師能夠優先從孩子的審美角度出發,激發孩子的想象力與創造力。因此本案例的設計師在進行裝飾設計時除了考慮整體的實用性、空間功能規劃外,還從孩子的審美、生活習慣角度出發,以保障能夠讓家成為孩子健康成長的快樂樂園。
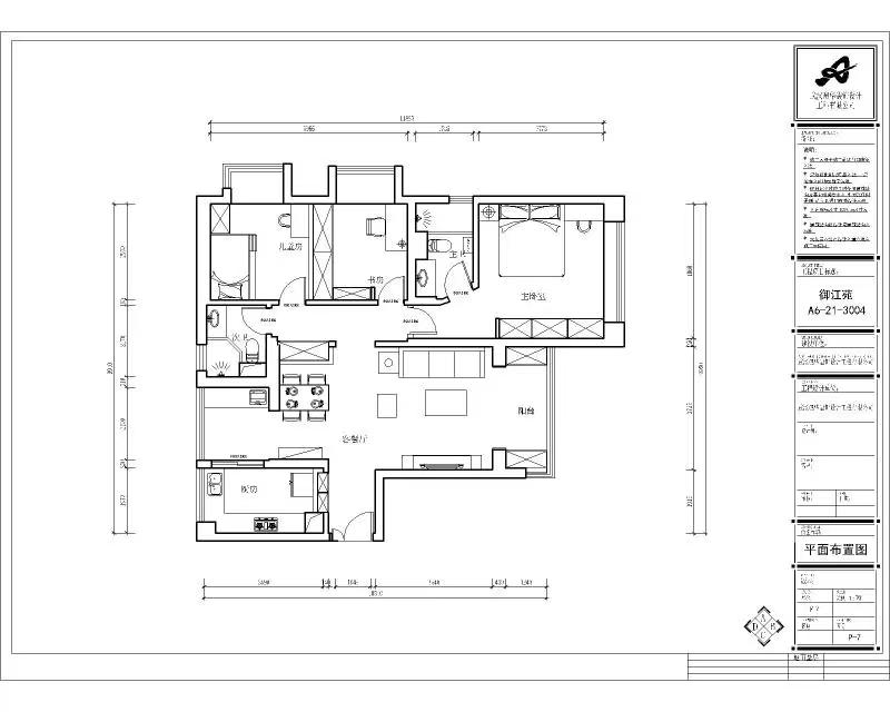
戶型解析:



御江苑2期這套三居室的建筑面積大約為130㎡,原有的戶型結構相對比較平整,且能夠滿足基本使用需求,因此設計師沒有改動整體格局,而是對各個功能空間進行了規劃設計。為了滿足業主在家辦公需求及孩子閱讀需求,設計師將原來的次臥改造成一間小書房。而為了提升休憩質量,空間的動靜區域進行合理的規劃區分。
客廳:



素雅的主基調色配色暖黃色燈具,朦朧而又不失溫馨感,亮色窗簾則讓空間多一抹明快氣息。
餐廳:

簡約的白色墻面搭配上長條餐桌,能夠滿足多位家庭成員就餐需求。藝術性掛燈,則讓就餐區域更具時尚氣息。
廚房:

白色墻面搭配上淺藍色櫥柜,精致又和諧,黑色抽油煙機的存在則打破了空間的輕浮感。
書房:

隱藏式收納柜的存在既可以滿足書籍收納需求,又不會占用較多空間。
臥室:



主臥以女主人偏愛的粉色為主基調色,搭配以各種少女心元素,強調溫馨甜美氛圍。
兒童房:

藍色印花壁紙溫馨而又充分童趣,雙層式床體設計則能夠滿足業主后續二胎孩子的起居使用需求。
案例簡介:業主是一對新婚夫妻,偏愛歐洲文化,但是又不喜歡過于繁瑣的設計,希望能夠加入一些現代簡約元素。同時,為了節約裝修成本,業主提出盡量不要破壞原有的功能結構。為了滿足業主的使用需求,設計師借用色彩來營造歐式風情,同時點綴以現代化元素,強調空間的時尚氛圍感。
戶型解析:


這套位于御江苑2期的130㎡三居室住宅空間的原有結構功能分區相對比較清晰合理,且能夠滿足業主的使用需求,因此設計師沒有對戶型進行再調整。為提升空間的私密度與起居舒適度,設計師將活動區域與休憩區域進行有效分隔,以保障休憩區域足夠靜謐,進而提升整體生活品質。
客廳:



客廳區域主要通過各類色彩來營造空間的精致感與溫馨氛圍。絲絨材質的藕粉色沙發與藍色幾何圖形地毯之間的碰撞高級而又耐看。墻面的金色鑲邊處理,則讓空間的歐式貴族風情得到展露。
餐廳:

素色墻面搭配上簡單植物掛畫,簡約而又不失小清新田園格調。
兒童房:

藍底印花的自然風壁紙為整個空間增添了自然浪漫氛圍,而雙層式收納床體的設計則能夠滿足多個孩子的起居使用需求。
廚房:

淡藍色的櫥柜搭配上白色瓷磚,整體給人簡約潔凈的舒適感。黑色抽油煙機既可以基本使用需求,又為空間增添沉穩氣息。
知精準報價 避裝修深坑
選擇您喜歡的風格
現代輕奢
現代美式
北歐
新中式
歐式
其他
知精準報價 避裝修深坑
選擇房屋面積區間
您的戶型
兩居室
三居室
四居室
五居室
六居室
知精準報價 避裝修深坑
稍等片刻,您的報價正在生中......
知精準報價 避裝修深坑
每日僅限前10名用戶