風格設計
案例簡介:本案例的業主作為一個教師,對于傳統的中國文化有著濃厚的興趣,因此在與設計師交流的時候強烈的表達了自己對中式元素的喜愛。因此在本案例設計過程中,設計師為業主選用了經典的新中式風,同時借助各類質感元素的雜糅使用,演繹了一個復古而又不失摩登時尚氛圍的輕奢雅苑。簡約的線條、傳統的中式復古元素,讓家居空間呈現出豐富的層次與藝術的格調。
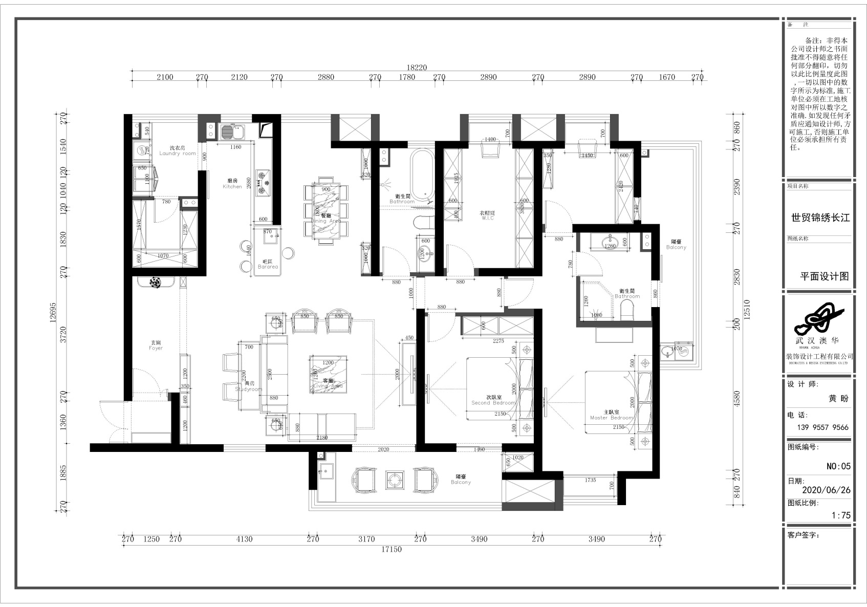
戶型解析:


世茂錦繡長江這套四居室的住宅面積大約在220㎡左右,整個戶型結構十分方正平整,空間規劃沒有太大難度,設計師按照業主的需求將休憩空間設置在距離入戶門最遠的區域,以提升空間的私密感。同時,為滿足女主人的起居搭配使用需求,單獨劃分出一塊衣帽區域,以提升整體的生活品質。整個空間的軟裝使用了大量的中式元素,以強調復古典雅的輕奢優雅氣息。
玄關:

傳統中式圖案的地板搭配上韻味十足的清新山水畫,營造一種溫潤投河夫人優雅深邃氛圍,讓人一進門就領略到主人的高雅情調。
客廳:

清冷的灰色暗紋大理石地板搭配上方正的深褐色木質家具,強調沉穩大氣格調。對稱式的軟裝設計,則讓整個空間更顯優雅穩重氣息。
餐廳:

大面積的大理石瓷磚奠定了清冷通透的空間氛圍,搭配以質感溫潤的木材,有效提升了空間的視覺平衡感。
主臥:

大面積的山水畫配以對稱式設計,端莊而又不失典雅氣息。
衣帽間:

禪意地毯碰上木質衣柜,一種優雅的格調在空間中流淌。藝術的現代燈飾,則讓空間多了一抹時尚氣息。
案例簡介:這套建筑面積140㎡房屋的業主是高階層白領,向往美好而又精致的家居生活,因此對于房屋裝修設計有著較高的品質需求。一個好的房屋設計其實能夠幫助業主選擇更為舒適、高品質的生活,本案例的設計師結合業主的審美品位及生活習慣,以帶有個性氣息的美式風展開進行裝修,充分的發揮了房屋的結構優勢,打造了一套實用兼具美觀的高性能住宅。
戶型解析:


這套位于金悅天地的三居室住宅面積約為140㎡,業主對房屋原有的戶型結構比較滿意,因此設計師在對房屋進行規劃設計時保留了房屋的原有結構,同時借助不同類型的隔斷讓各個功能空間分區更加明確,讓整個房屋戶型呈現出更加簡潔舒適、干凈利落的狀態。再搭配以清新色彩、個性化裝飾,讓家居空間能夠更具趣味感與精致感。
玄關:

一個矮腳迷你沙發與深色地毯就構成了一個簡單的玄關設計,此外由于空間面積有限,沒有做過多裝飾設計。
客廳:


客廳整體以溫暖舒適的色調為主,融入復古造型的華麗吊燈,強調一種溫馨愉悅的氛圍感。
餐廳:


帶有自然氣息的擦座椅搭配上藝術感十足的掛畫,清新而又不失精致美。一株簡約的亮色花束,則讓就餐氛圍更加溫馨。
衣帽間:

白色的開放式衣柜搭配上光線明亮的燈具就構成了一個簡約的衣帽間,空間沒有過多的裝飾,強調功能性。
臥室:


大面積的藕粉色搭配上柔軟的床具勾勒出優雅而又柔和的調子,蕾絲邊的窗簾設計既少女心十足的臺燈,則為空間增添一抹甜美。
衛生間:

衛生間沿用了與臥室一直的粉色,強調空間銜接感。溫軟柔和的冷白色暗紋瓷磚,則讓衛生間區域多了一抹潔凈冷冽的氣息。
知精準報價 避裝修深坑
選擇您喜歡的風格
現代輕奢
現代美式
北歐
新中式
歐式
其他
知精準報價 避裝修深坑
選擇房屋面積區間
您的戶型
兩居室
三居室
四居室
五居室
六居室
知精準報價 避裝修深坑
稍等片刻,您的報價正在生中......
知精準報價 避裝修深坑
每日僅限前10名用戶