細心耐心
案例簡介:本案例的業主是企業高管,有著自己的品味與審美,因此希望在家裝設計的過程中能夠展示出自己的品味。而設計師在與業主進行深入交流之后,為業主挑選了品質感較強的現代輕奢風進行整體裝飾,借助簡約的色彩與裝飾賦予空間個性與格調感。
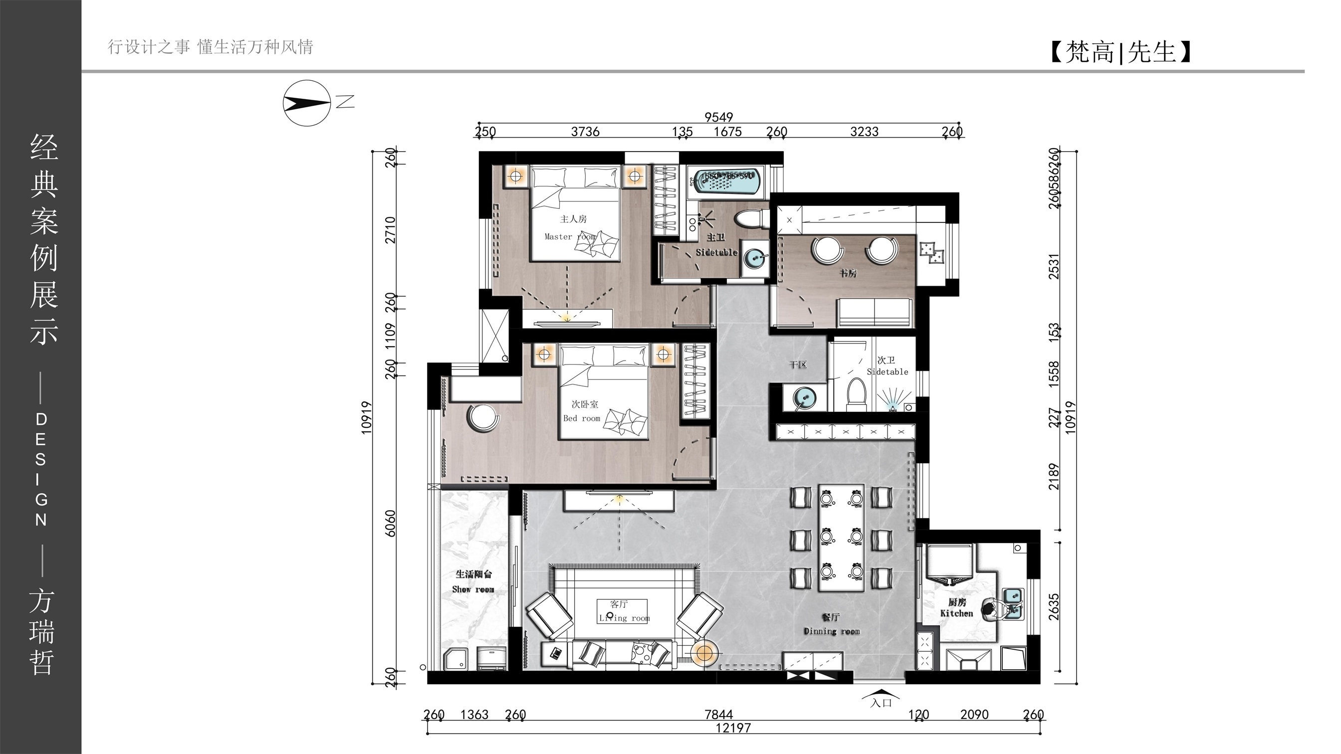
戶型解析:

萬科濱江玉璽這套四居室的住宅占地面積約為265㎡,整個格局雖然較為寬敞,但是原有的戶型結構中存在一些難以利用的小空間,因此需要設計師將空間進行合理的規劃利用,在保障室內和諧感的同時提升空間利用率。走廊處的一塊帶有犄角的小空間面積不大,且局限性較大,因此設計師將該區域直接打造為儲物間,滿足日常收納需求。走廊盡頭的小空間則直接與主臥空間打通,改造成一個迷你的衣帽間,提升主人生活的品質感。
客廳:

客廳以簡約的淺色系色彩為主基調色,強調冷靜沉穩的氛圍感,搭配以亮橘色沙發,為空間增添驚艷高級感。
餐廳:

不同深度的灰色賦予了就餐空間簡約感與結構刊,搭配上大理石餐桌,給人優雅高級格調感。
臥室:

衣柜與背景墻處的金色線條處理簡約而又不失輕奢高級感,搭配以藕色床具、窗簾,給予空間柔和溫馨靜謐感。
案例簡介:現代輕奢風借用了最為簡潔的元素來展示一種由內向外的高級格調感,強調一種內斂的獨特品味,這也是現代輕奢風的魅力所在。而本案例的設計師借助材料絲絨材質、大理石材質等質感元素進行空間裝飾,強調室內氛圍的輕奢優雅感。同時,利用冷暖色系的搭配使用增添室內環境的視覺豐富感與層次感。
戶型解析:

新城錦瑞城這套136㎡的三居室住宅戶型結構上相對比較規整,沒有復雜且難以規劃設計的空間,功能區也比較相近,因此設計師需要權衡好空間的動靜分區。而由于業主工作的性質,設計師單獨劃分出一個區域打造成書房,滿足業主在家辦公需求,同時借助靈活式設計滿足客人休憩使用需求。陽臺區域則借助大面積落地窗將室外陽光盡可能的引入室內,以提升室內采光。
客廳:



由于客廳寬度不夠,因此設計師選擇了長條形沙發,點綴以色彩清新跳躍的抱枕,從視覺上擴大空間寬敞度。
餐廳:


核桃色的木質櫥柜與白色墻面反差感較大,給人以較強視覺沖擊力。
臥室:


淡藍色墻面奠定靜謐柔和氛圍,灰色地毯則平衡了空間的輕柔感,為空間增添一抹沉穩氣息。
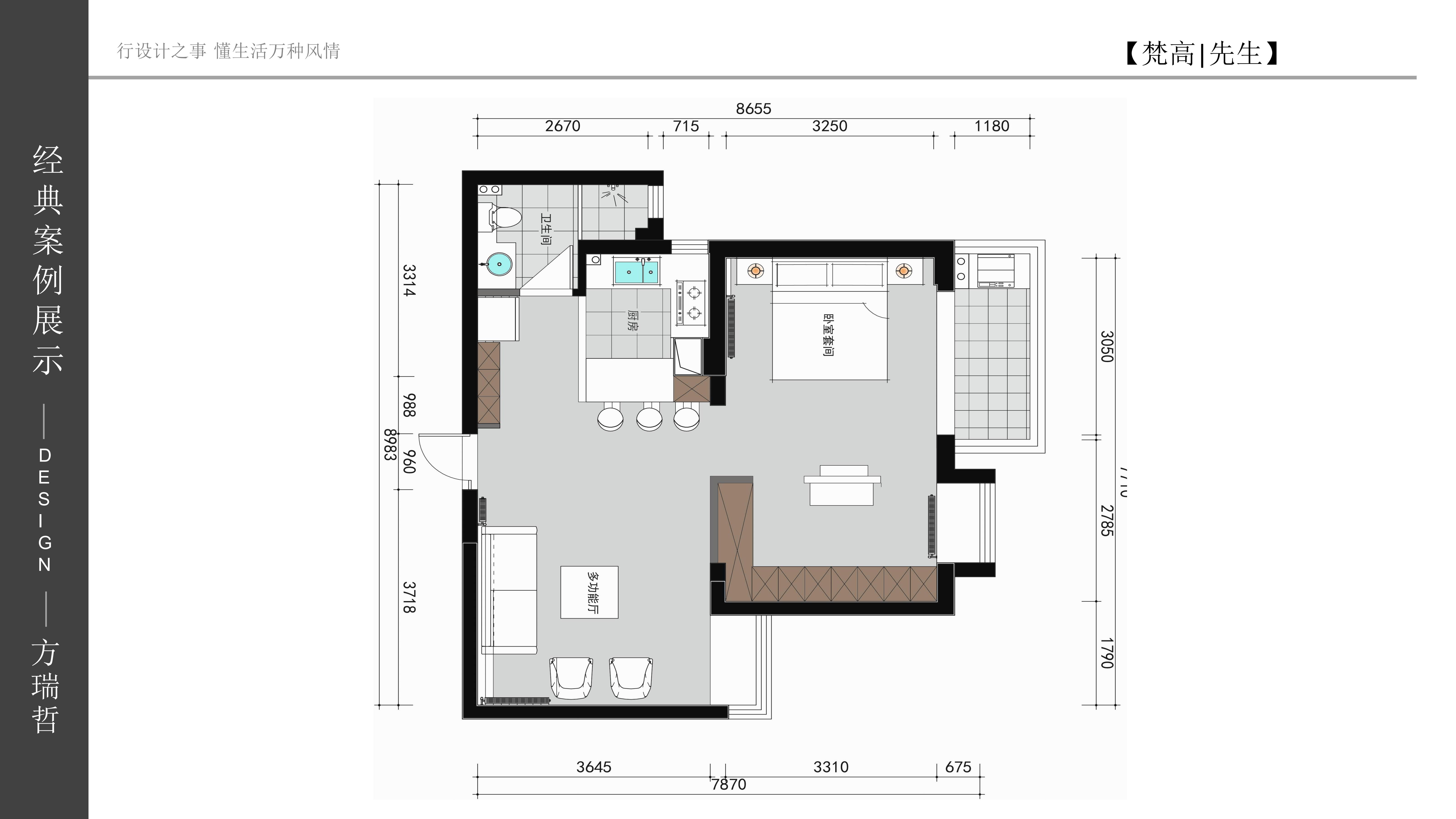
案例簡介:本案例的業主是一位獨居人士且近期沒有結婚的打算,因此房屋面積并不大,在與設計師交流時,業主明確的提出休憩空間一定要強調舒適,而整個住宅則要突出自己的個性與品位。設計師按照業主的想法將空間打造成半開放式設計,同時將約一半面積打造成為休憩空間,以滿足業主日常休憩、辦公需求。休憩空間以外的區域則打造成廚房與多功能空間,滿足做飯、會客等多種需求。
戶型解析:

銀泰御華園這套80㎡的公寓式住宅原有格局相對比較規整,而由于空間面積較小,因此設計師在進行規劃設計的時候除了必要的衛浴空間借助硬隔斷外,其他功能區域則借助軟隔斷進行空間分隔,以提升家居環境的通透感。裝修風格的選擇上,設計師則為業主選用了具有個性感與時尚感的現代風,同時借助各種自然系的色彩進行裝飾點綴,為空間增添森系優雅美。
客廳:


綠色背景墻搭配上布藝沙發,營造清新的森系自然風情。
多功能區:

木質地板搭配上幾個可收納式的毯子就構成了多功能區,強調自由隨意感。
臥室:

簡約白色水泥墻搭配上由色塊點綴而成的床具,整體清新而又不失簡約時尚美。
知精準報價 避裝修深坑
選擇您喜歡的風格
現代輕奢
現代美式
北歐
新中式
歐式
其他
知精準報價 避裝修深坑
選擇房屋面積區間
您的戶型
兩居室
三居室
四居室
五居室
六居室
知精準報價 避裝修深坑
稍等片刻,您的報價正在生中......
知精準報價 避裝修深坑
每日僅限前10名用戶